Family 135
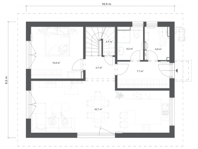
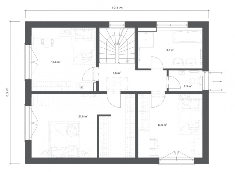
Dům Family 135 zaujme moderním designem, který je ideální také pro menší pozemky. Tento kompaktní dům nabízí promyšlenou otevřenou dispozici s velkými prosklenými plochami, které se rozprostírají přes obě podlaží, tím přinášejí dostatek světla do obývací, jídelní i kuchyňské části. Velké prosklené dveře vedou přímo na prostornou terasu, což je ideální místo pro relaxaci a společenská setkání. V poschodí se nachází ložnice s krásným výhledem a další dvě prostorné místnosti, které poskytují klid a naprosté soukromí. Tento dům dokonale spojuje moderní estetiku s praktickými potřebami rodiny, což z něj činí skvělou volbu pro pohodlné rodinné bydlení.
| Provedení domu | 5+kk |
| Užitná plocha | 135 m2 |
| Zastavěná plocha | 86,6 m2 |
| Rozměry domu | 8.2 x 10.5 m |
Více inspirace na dispoziční řešení domu najdete u domu Family 131 (který je o 1 modul = 60cm kratší).
VZOROVÝ DŮM OLOMOUC - varianta 1 ZMENŠENÍ O MODUL, vstup z boku, zrušení šatny
Family 135 - varianta 2 zrušena šatna v patře
Family 135 - varianta 3 kuchyně do zahrady, posun schodiště
Family 135 - varianta 4 zvětšení domu o modul, individuální dispozice
Family 135 - varianta 5 zvětšení o modul, vlastní dispozice