Bungalov 70
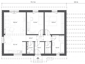
Bungalov 70 představuje komfortní bydlení včetně základové desky a veškeré dopravy. Naleznete zde technickou místnost s místem na pračku, samostatné WC, prostornou koupelnu s vanou i sprchou a dvě dostatečně velké ložnice. Navíc máte velkou pochozí půdu s možností odkládat sezonní věci.
Půdorys rodinného domu Bungalov 70 je určen i podmínkami správy CHKO – domy musí být obdélníkového tvaru s poměrem stran 1:2, šířka štítové stěny se musí pohybovat mezi 6 – 9 m. Krytina sedlové střechy se volí dle místní tradice, a to jak barva, tak materiál. Velké prosklené plochy jsou situovány do obytných místností, kde přinášejí pasivní solární zisky a tím také značnou úsporu za vytápění.
Dodávka vybavení na klíč obsahuje:
- sedlová střecha se sklonem 40°
- v ceně domu základová deska, pergola a doprava
- obvodové stěny s vnitřní izolací 120 + 40 mm a vnější termofasádou 150 mm uzavřenou strukturní barevnou omítkou
- betonová střešní krytina včetně anténní tašky
- vnější dřevěné díly natřené lazurovou barvou dle vzorníku
- okapy z titanozinku
- venkovní nezámrzný zahradní ventil
- zateplený poklop se schůdky na pochozí půdu
- laminátová podlaha nebo koberec v obytných místnostech, v ostatních místnostech dlažba
- obklady v koupelně a na WC do výše dveří
- elektroinstalace od skříně domovního rozvaděče včetně dodávky domovního rozvaděče, v místnostech jsou zabudovány zásuvky a vypínače bílé barvy
- ventilátor s hygrostatem v místnostech s vanou nebo sprchou
- instalace slaboproudu - zvonek od domovních dveří, zásuvka pro kabelové připojení TV včetně kabelového rozvodu v domě
- sanitární vybavení - umyvadlo ze sanitární keramiky v bílé barvě se směšovací pákovou baterií, umývátko ze sanitární keramiky v bílé barvě se směšovací pákovou baterií, vana s pákovou baterií a se sprchovou hadicí a růžicí, sprchový kout včetně baterie se sprchovou hadicí a růžicí a kombinované WC
- přípojka pro pračku
- přípojka pro myčku
- ohřev teplé vody pomoci zásobníku 200 l
- tepelné čerpadlo vzduch/vzduch s možností vytápění nebo chlazení interiérovými splitovými klimatizačními jednotkami
- elektrické nástěnné přímotopné panely bez centrální regulace
- třífázový fotovoltaický systém o výkonu cca 2,7 kWp s hybridním střídačem
- fotovoltaický třífázový On-grid systém s akumulací do zásobníku TUV
- malířské práce - stěny a stropy upraveny zednickou stěrkou stupně kvality povrchu Q2, bílá malba
- kuchyňské přípojky vody, odpady a elektro v rozsahu dle typové obchodní dokumentace
- rozvody vody potrubí Alpex, kanalizace z plastových trubek
- požární bezpečnost - zařízení autonomní detekce a signalizace
- okna a terasové dveře vyrobené ze 7-mi komorových PVC profilů v bílé barvě s izolačním trojsklem, součinitel prostupu tepla celého okna Uw ≤ 1,0 W/(m².K)
- vnitřní dýhované dveře v provedení plné s obložkovou zárubní a protihlukovým průběžným gumovým těsněním
- dveřní kování dvoudílné rozetové
- vchodové domovní dveře v provedení masiv nebo z 5-ti komorových PVC profilů v bílé barvě se třemi závěsy a pětinásobným uzávěrem
Díky klasickému obdélníkovému půdorysu a sedlové střeše je dům BUNGALOV 70 vhodný do jakékoliv zástavby. Velké prosklené plochy jsou situované do obytných místností a ty jsou díky nim krásně prosvětlené. V zimě mají tu výhodu, že maximálně využívají sluneční paprsky k ohřívání interiéru a tím přinášejí úsporu za vytápění.
Chcete moderní bydlení, ale stavíte v chráněné krajinné oblasti? Odpovědí je BUNGALOV 70. Půdorys rodinného domu BUNGALOV 70 se řídí podmínkami správy CHKO, kde domy musejí mít obdélníkový tvar s poměrem stran 1:2 a šířka štítové stěny se pohybuje mezi 6-9 m. Krytinu sedlové střechy volíme podle místní tradice, a to jak barvu, tak materiál.
BUNGALOV 70 zaujímá zastavěnou plochu 111.95 m2, díky které perfektně zapadne do krajiny a přizpůsobí se stávajícím stavbám. I přes nevelké rozměry však poskytuje plnohodnotné bydlení moderní rodině s dětmi. Jistě přivítáte možnost využití o prostorného podkroví. Splnit veškeré podmínky pro stavbu rodinného domu v CHKO není rozhodně jednoduché, proto neváhejte a svěřte stavbu takového domu do odborných rukou RD Rýmařov.
| Celkem |
|---|
| Obytná plocha 38,94 m2 |
| Příslušenství 31,38 m2 |
| Zastavěná plocha 111,95 m2 |
| Podlahová plocha přízemí 70,32 m2 |
| Rozměry domu 11,14 x 7,81 m |
| Sklon střechy 40° |















































