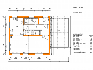
Kubis 117
KUBIS 117 zůstává věrný své typové řadě. Jeho poznávacím znamením jsou jednoduché tvary, energetická úspornost a naprosto špičková výbava. V základní ceně domu máte pergolu garážového stání a základovou desku. Bydlení v domě KUBIS 117 je velmi úsporné a komfortní pro celou rodinu. Je totiž dostatečně prostorný, a přitom na parcele nezabere tolik místa.
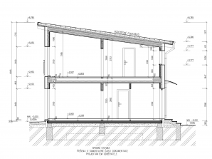
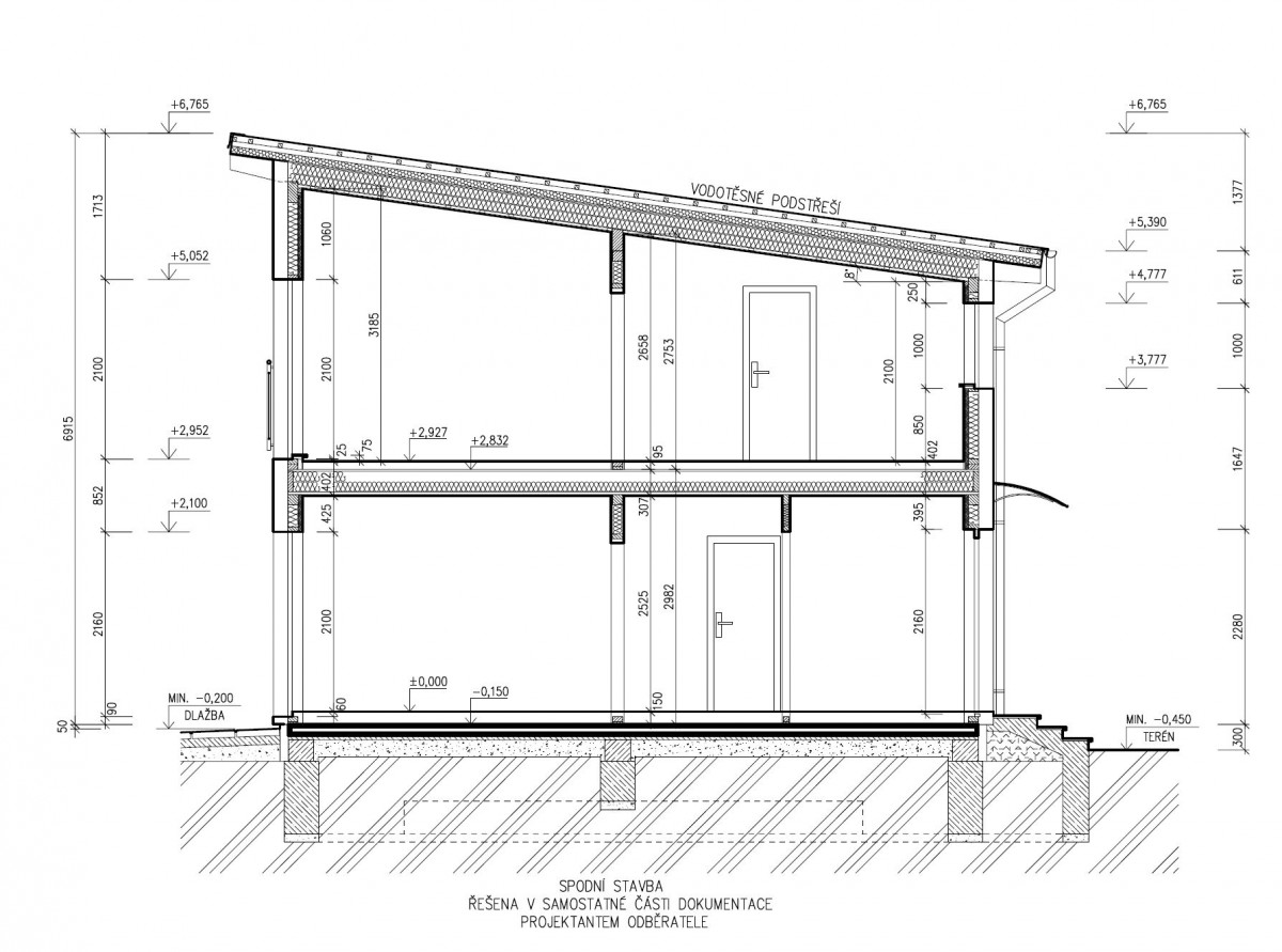
Součástí domu KUBIS 117 je již v základu pergola, která dotáhne design celého domu k dokonalosti. Dům má sedlovou střechu se sklonem 22o, a tak je vhodný do moderní i starší zástavby.
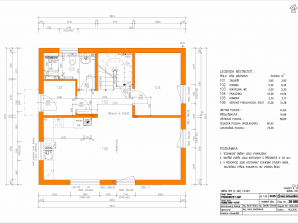
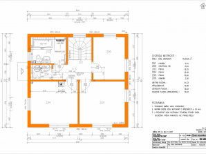
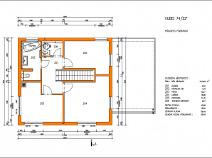
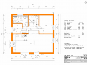
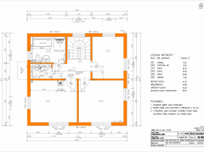
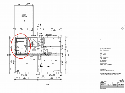
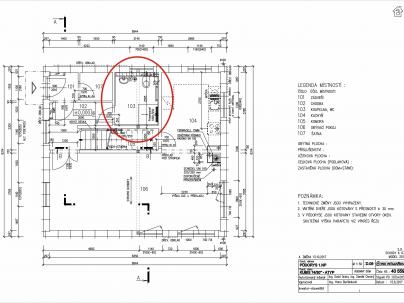
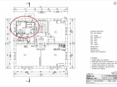
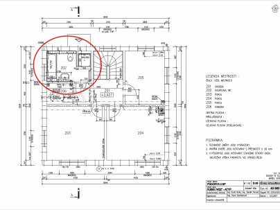
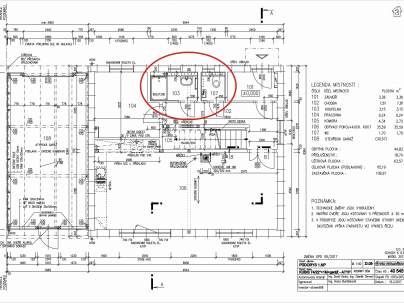
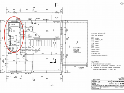
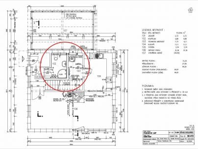
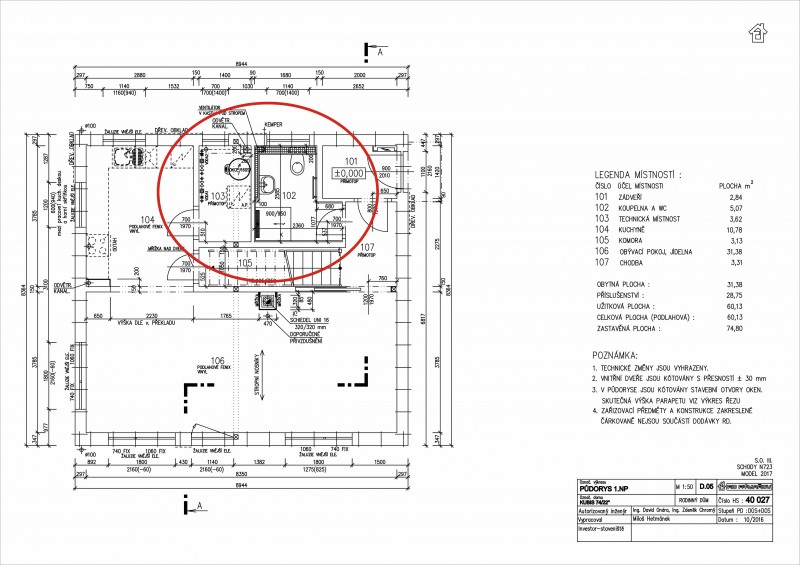
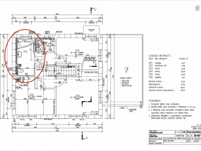
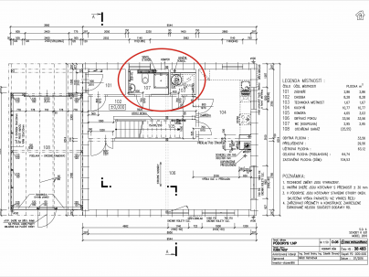
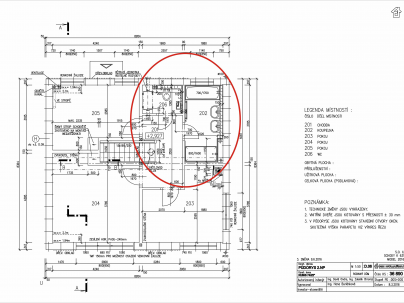
KUBIS 117 Vás překvapí svou prostorností a jednoduše řešenými dispozicemi. Nenajdete žádná hluchá místa a zbytečné výklenky. KUBIS 117 byl navržen s maximálním ohledem na praktičnost a běžný chod domácnosti. Čtvercový půdorys a zastavěná plocha necelých sto metrů čtverečních jsou ideální i na menší pozemky. Přesto se Vám bude v tomto typovém domě pohodlně bydlet, protože poskytuje přes 117 m2 obytné plochy. Sedlová střecha se sklonem 22o zase umožňuje plnohodnotné využití podkroví. Vyhnete se tak šikmým stropům, které bydlení mnohdy jenom komplikují. V přízemí Vás jistě překvapí velmi prostorný obývací pokoj a jídelna. Nechybí ani praktické užitné místnosti. KUBIS 117 Vám dá to, co jiný dům nedokáže.
Dodávka vybavení na klíč obsahuje:
- tepelné čerpadlo vzduch/vzduch s možností vytápění nebo chlazení interiérovými splitovými klimatizačními jednotkami
- elektrické nástěnné přímotopné panely bez centrální regulace
- fotovoltaický jednofázový on GRID systém s akumulací do zásobníku TUV
- dispozice 4 + kk s možností jednoduché úpravy na 5 + kk
- sedlová střecha se sklonem 22°
- v ceně domu pergola, základová deska a doprava
- obvodové stěny s vnitřní izolací 120 + 40 mm a vnější termofasádou 150 mm uzavřenou strukturní barevnou omítkou
- betonová střešní krytina včetně anténní tašky
- vnější dřevěné díly natřené lazurovou barvou dle vzorníku
- okapy z titanozinku
- venkovní nezámrzný zahradní ventil
- schodiště mezi přízemím a obytným podkrovím v provedení buková spárovka
- laminátová podlaha nebo koberec v obytných místnostech a na chodbě v podkroví, v ostatních místnostech dlažba
- obklady v koupelně a na WC do výše dveří
- elektroinstalace od skříně domovního rozvaděče včetně dodávky domovního rozvaděče, v místnostech jsou zabudovány zásuvky a vypínače bílé barvy
- ventilátor s hygrostatem v místnostech s vanou nebo sprchou
- instalace slaboproudu - zvonek od domovních dveří, 2 zásuvky pro kabelové připojení TV včetně kabelového rozvodu v domě
- sanitární vybavení - umyvadlo ze sanitární keramiky v bílé barvě se směšovací pákovou baterií, umývátko ze sanitární keramiky v bílé barvě se směšovací pákovou baterií, vana s pákovou baterií a se sprchovou hadicí a růžicí, sprchový kout včetně baterie se sprchovou hadicí a růžicí a kombinované WC
- přípojka pro pračku
- přípojka pro myčku
- ohřev teplé vody pomoci zásobníku 200 l
- přímotopné panely bez centrální regulace
- malířské práce - stěny a stropy upraveny zednickou stěrkou stupně kvality povrchu Q2, bílá malba
- kuchyňské přípojky vody, odpady a elektro v rozsahu dle typové obchodní dokumentace
- rozvody vody potrubí Alpex, kanalizace z plastových trubek
- požární bezpečnost - zařízení autonomní detekce a signalizace
- okna a terasové dveře vyrobené z 6-ti komorových PVC profilů v bílé barvě s izolačním trojsklem, součinitel prostupu tepla celého okna Uw ≤ 1,0 W/(m².K)
- vnitřní laminové dveře KASARD v provedení plné s obložkovou zárubní a protihlukovým průběžným gumovým těsněním
- dveřní kování dvoudílné rozetové
- vchodové domovní dveře v provedení masiv nebo z 5-ti komorových PVC profilů v bílé barvě se třemi závěsy a pětinásobným uzávěrem
Parametry domu
| Zastavěná plocha včetně pergoly 99,37 m2 | |
| Podlahová plocha přízemí 61,17 m2 | |
| Podlahová plocha podkroví 56,61 m2 | |
| Rozměry domu 9,04 x 8,41 m | |
| Sklon střechy 22° |
|









































































































































